Un nuovo cantiere aperto, questa volta a Ortona, dove lunedì 7 ottobre 2024 è stato dato avvio ai lavori per la realizzazione della Casa di Comunità .

"Per la prima volta questa città potrà disporre di un polo unico di medicina territoriale - ha detto Il Direttore Generale della Asl Thomas Schael -
( clicca sulla foto con il bordo colorato per vedere direttamente l'intervento )
, nel quale trovare tutte le risposte attinenti l'assistenza primaria nelle 24 ore e tutti i servizi concentrati in un solo luogo. Con i progetti finanziati con fondi Pnrr, in tutta la provincia di Chieti diamo nuovo impulso alla sanità del territorio, sulla quale in passato non era stato investito un centesimo, al di là delle buone intenzioni. L'alternativa all'ospedale passa per interventi come quello di Ortona e gli altri 14 progettati e in parte già avviati in tutto il Chietino".

La Casa di Comunità a Ortona sorge all'interno del Distretto sanitario di piazza San Francesco, con i lavori di riqualificazione che andranno avanti per fasi, visto che si rende necessario coniugare le attività del cantiere con la continuità dei servizi per la salute.
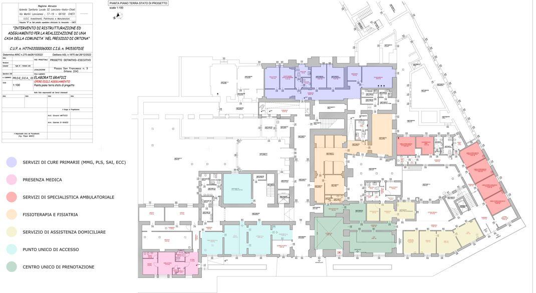
Queste le planimetrie dell'intervento.


Nella prima fase, a cui è stato dato formalmente avvio oggi,

saranno realizzati la sede della Continuità assistenziale, gli ambulatori destinati all'Unità complessa di cure primarie, la sala d'attesa e l'accettazione infermieristica.
Queste le altre fasi :





All'apertura del cantiere erano presenti il Commissario prefettizio Gianluca Braga,
il Sottosegretario regionale Daniele D'Amario,

Renato Lisio, direttore area distrettuale 1
( clicca sulla foto con il bordo colorato per vedere direttamente l'intervento )
i tecnici dello Studio Associato "G Quadro" che ha eseguito la progettazione,
Gabriele Di Nunzio,
( clicca sulla foto con il bordo colorato per vedere direttamente l'intervento )
Nicola Di Toro, e
Giovanni Mattucci, quest'ultimo anche Direttore dei lavori,
( clicca sulla foto con il bordo colorato per vedere direttamente l'intervento )
i quali si sono impegnati a concludere l'opera nel tempo massimo di un anno. L'appalto, per 550 mila euro, è stato aggiudicato al Raggruppamento Temporaneo di Imprese Edil Servizi e Travaglini.

da c.s.
Giovedì 6 aprile 2023, alla Sala Eden , era stato presentato il Progetto PNRR dell'Asl2 Lanciano-Vasto-Chieti per la realizzazione della Casa della Comunità di Ortona.






