Un progetto sociale che prevede la realizzazione di un centro servizi a favore dell'inclusione promosso dall'ente d'ambito sociale ortonese di cui il comune di Ortona è l'ente capofila. Nei giorni scorsi l'ufficio comunale dei lavori pubblici ha proceduto alla consegna dei lavori alla ditta Impresa Costruzioni De Cesare ing. Urlico srl di Chieti, che si è aggiudicata l'appalto offrendo un ribasso d'asta del 12,22% per un totale di 706 mila euro.
Il progetto è finanziato attraverso un bando del Piano Nazionale di Ripresa e Resilienza (PNRR) missione 5 a cui l'ADS n.10 Ortonese ha partecipato ottenendo il contributo di complessivi 1 milione e 90mila euro per la progettazione e realizzazione di questo centro servizi sociali che sarà gestito da una equipe di professionisti e che risponderà all'esigenza di accoglienza, di assistenza e di socializzazione a beneficio delle persone che vivono momenti di difficoltà e disagio ma svolgerà anche la funzione di punto di riferimento per la comunità locale per i servizi quali il supporto socio-assistenziale, l'informazione e l'orientamento.
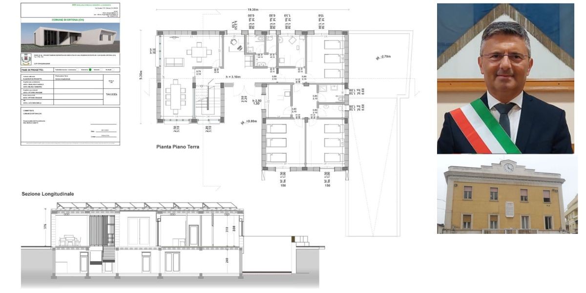
La struttura individuata è in contrada Savini e fa riferimento all'edificio dell'ex scuola elementare, costruito nei primi anni cinquanta e attualmente in stato di abbandono e disuso. Il cantiere dei lavori prevede la demolizione dell'edificio e la ricostruzione di un nuovo edificio da destinare a stazione di posta composto da un'unica struttura su due livelli di cui uno fuori terra e uno interrato per complessivi 200mq a piano. Il piano terra sarà destinato alle attività con spazi suddivisi per la gestione amministrativa, spazi comuni, ambulatori, servizi igienici e tre camere da letto da 3 posti letto ciascuna per complessivi 9 alloggi che saranno utilizzati per brevi periodi di tempo. Il piano interrato è invece destinato ai servizi igienici per il personale, locali tecnici, lavanderia e magazzini. Il progetto prevede anche la realizzazione di un impianto fotovoltaico a servizio della struttura della potenza di 13.28 kwp composta da 32 moduli, in grado di produrre energia elettrica in collegamento alla rete elettrica.

«Si tratta di un progetto sociale – sottolinea il sindaco Leo Castiglione – a servizio del territorio e di otto enti d'ambito a livello provinciale di cui Ortona è capofila, un centro servizi leggero in grado di erogare i servizi previsti dalla scheda Leps del Piano Sociale Nazionale sotto la supervisione di personale qualificato, un punto di eccellenza e di vanto che migliorerà l'organizzazione dei servizi socio-assistenziali del nostro ente d'ambito a servizio delle necessità dei residenti del territorio. Voglio anche tranquillizzare i residenti che non si tratta di alcun centro per immigrati o un centro di recupero, ma sarà una struttura moderna gestita con personale qualificato che darà supporto immediato a persone con particolari difficoltà , inoltre l'amministrazione ha ritenuto opportuno riqualificare e riprogettare una struttura di proprietà comunale da decenni in stato di abbandono e degrado».

